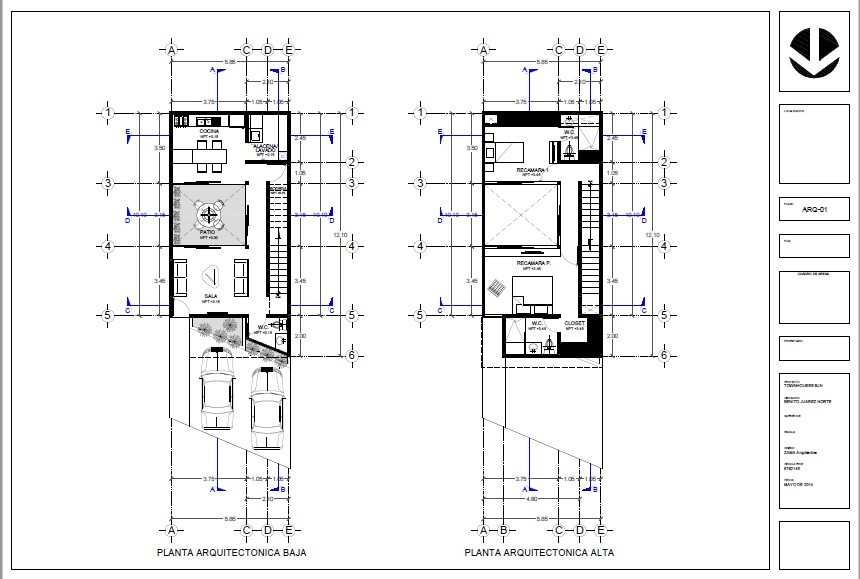
Es un desarrollo inmobiliario ubicado en la colonia Benito Juárez Norte de Mérida. Este complejo inmobiliario consta de 12 Townhouses de 112 m2 de construcción y cada módulo es completamente independiente a sus servicios y consta de 2 recamarás con closet, 2.5 baños, sala – comedor y cocina, bodega y alacena, cochera para dos autos sin techar.